Ny lengre utgave, med teleskopisk uttrekk i begge ender av plattform. Bildene viser mk2 modell med kun uttrekk foran.
Løftebukken består av to separate sakser, slik at man kan gå i mellom og få tilgang til bilen under. Leveres komplett med gummiklosser, ekspansjonsbolter og ellers alt som trengs utenom hydraulikkolje. Veldig kraftig og stabil sakseløfter. Den trenger 15 liter med en vanlig 32 eller 46 type olje.
Løftebukken kommer også i en galvanisert utgave som heter S7G: TechLift S7G
Løfteren har en tilleggsfunksjon som tillater at en kan kjøre kun den ene saksen (den som er lengst unna kontrollboks). Veldig praktisk om en skal benytte en plattform som et løftebord, eller for løft av MC eller lignende.
Spesifikasjoner TechLift S7 mk3 sakseløfter for nedfelling:
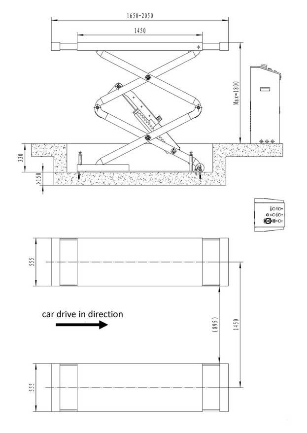
– Løftekapasitet: 3500kg
– Løftehøyde fra gulv: 1800mm (2130mm fra bunn av sjakt)
– Dybde sjakt: 330-350mm (kan justeres litt)
– Lengde plattform: 1650-2050mm
– Vekt: 750kg
– Eltilkobling: 230v/50hz (krever 16amp treg sikring)
– Sikkerhetslås med luftdeaktivering. (trenger luftkompressor for dette)
– Leveres med 4stk gummiklosser, og ekspansjonsbolter for feste i betong.
– Leveres med kabel og norsk kontakt.
– CE merket og leveres med samsvarserklæring.
– Rampe som kan trekkes ut for å forlenge plattformen.
Her finner du svar på vanlige spørsmål om våre løftebukker: Vanlige spørsmål løftebukk


